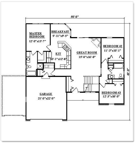
About the Whistler Ridge Home
This 1,472 sq. ft. 3 bedroom | 2 bath home is the perfect size for those of you either looking for a starter home or the complete opposite: looking to down size. The plan features a split bedroom lay out, cathedral ceilings in the great room, a large island in the kitchen, and much more.


