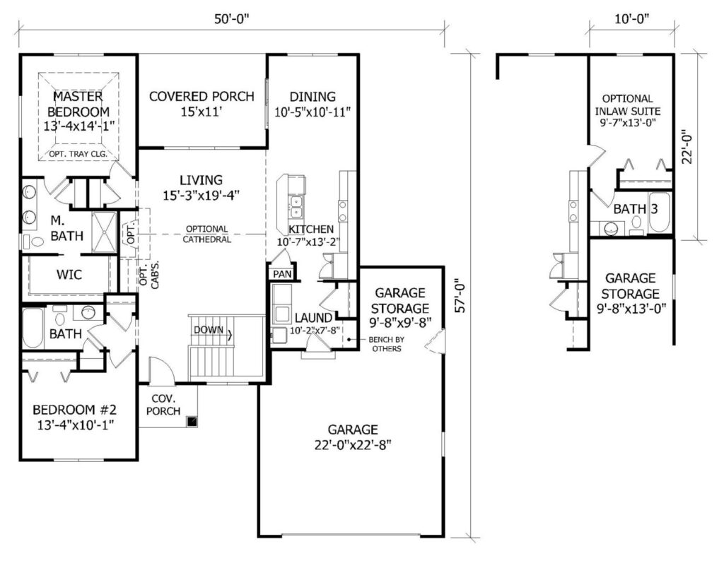
Somerset

152
2/3 Bedroom
2 Bath
1,496/1,718 Sq. Ft.
Somerset
Somerset

http://midwesthomebuilder.com/our-floorplans/somerset-2/

Midwest Home Builder Amwood Homes, Inc.