About the Desert Mountain Home
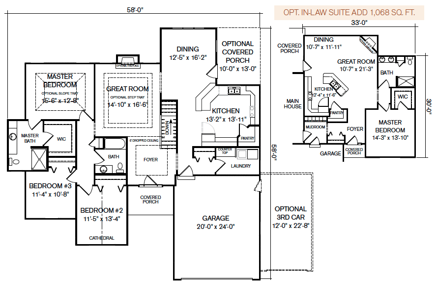
Our Desert Mountain is a 3 bedroom | 2 bath ranch just over 1,850 sq. ft. This charming home has a great floor plan and is sure to make an excellent dream home!
Midwest Home Builder

Our Desert Mountain is a 3 bedroom | 2 bath ranch just over 1,850 sq. ft. This charming home has a great floor plan and is sure to make an excellent dream home!