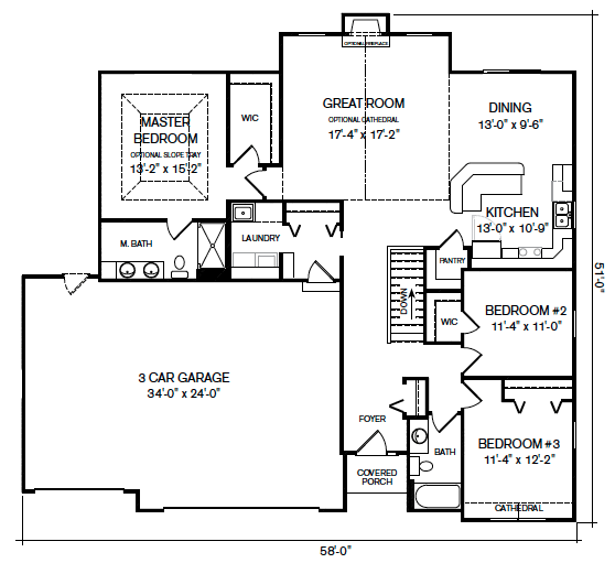
About the Coralville Home
This 1,751 sq. ft. ranch features three bedrooms and two baths, along with a three-car garage. The living space features an open concept, making for a great place to host family gatherings, along with a split-bedroom layout.


