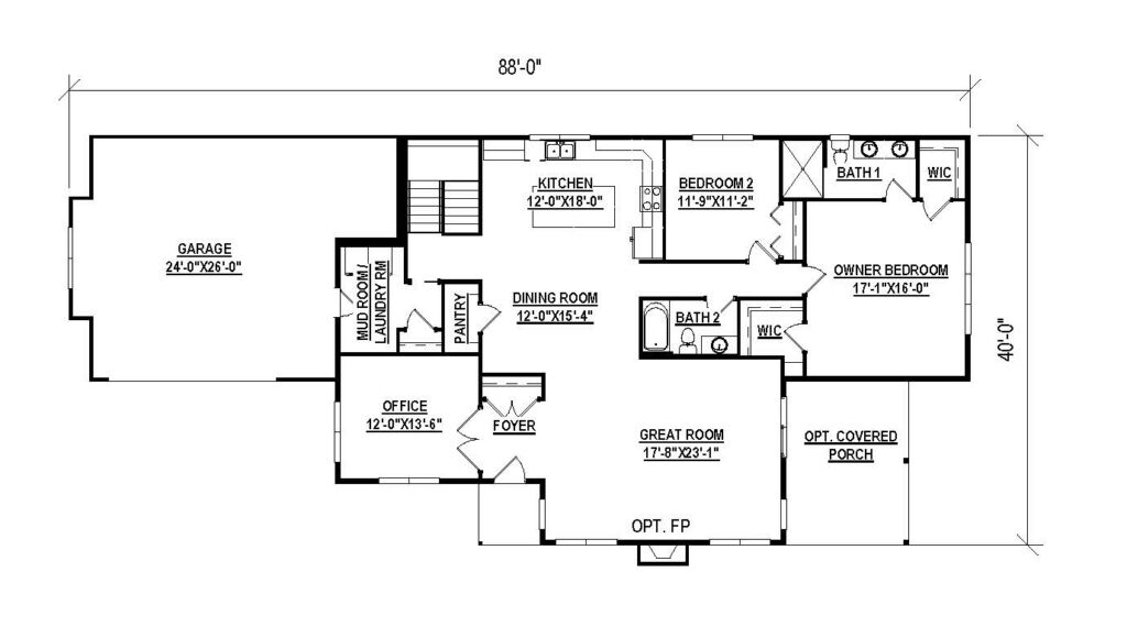
About the Cheyenne Home
The Cheyenne is perfect for a narrow lot. This plan features vaulted ceilings throughout most of the home. Includes optional covered rear patio and finished basement plans that can increase the square footage by 1,607 and include 2 additional bedrooms, bathroom, and rec room.


