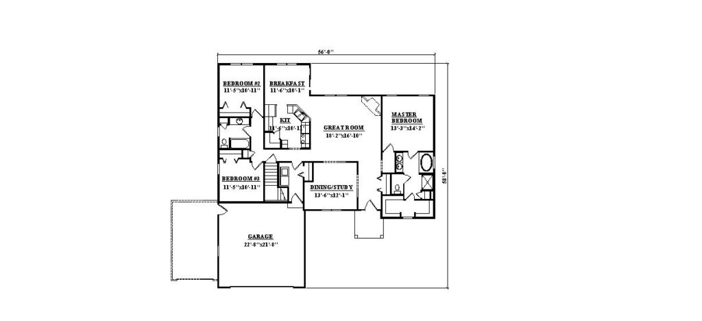
Carrington

120
3 Bedroom
2 Bath
1,856 Sq. Ft.
Carrington
Carrington

http://midwesthomebuilder.com/our-floorplans/carrington-2/

Midwest Home Builder Amwood Homes, Inc.