Alexandria

137
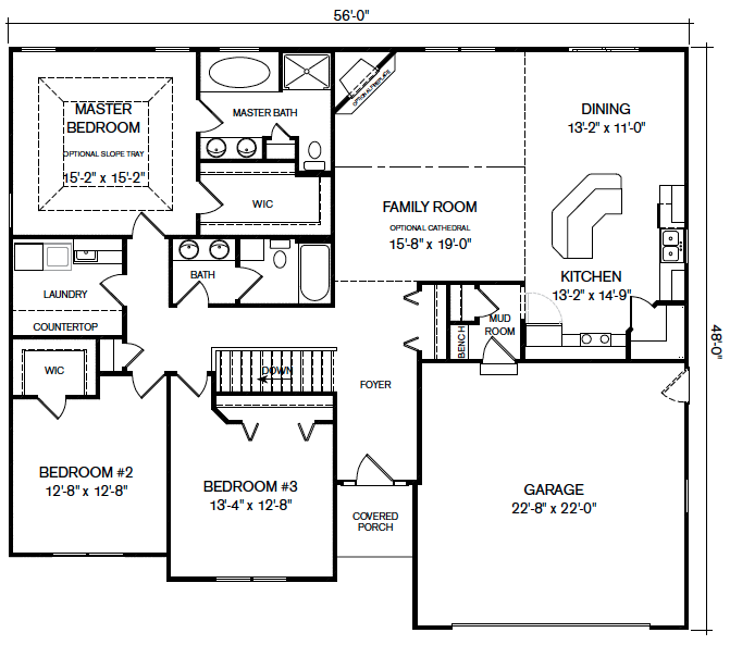
3 Bedroom
2 Bath
2003 Sq. Ft.
Alexandria
Alexandria

About the Alexandria Home

Here is the lovely Alexandria: a spacious 3 bedroom, 2 bath ranch just over 2,000 sq. ft.

http://midwesthomebuilder.com/our-floorplans/alexandria-2/

Midwest Home Builder Amwood Homes, Inc.